Kontaktujte specialisty z obchodního oddělení
nebo navštivte naše pobočky.
ELEKTRODESIGN ventilátory spol. s r. o.
Boleslavova 53/15
140 00 Praha 4 – Česká Republika
elektrodesign[zav]elektrodesign[teč]cz
www.elektrodesign.cz
Popis produktu
Skříň
Stěnové panely tloušťky 45 mm jsou vyrobeny z ocelového pozinkovaného plechu s vnějším lakováním v odstínu RAL 9002. Panely jsou uvnitř vyplněné zvukovou a tepelnou izolací z nehořlavé skelné minerální vlny. Pro usnadnění servisu je skříň jednotky vybavena snímatelnými dveřmi se zámky. Rám jednotky je vyroben z hliníkových profilů, stěnové panely jsou do rámu přišroubovány. Připojovací hrdla vodních ohřívačů jsou vyvedena na vnější plášť jednotky. Skříň je opatřena 4 kusy závěsů s otvory Ø 12 mm pro podstropní montáž jednotky.
Ventilátory
V jednotce je montován ventilátor s dozadu zahnutými lopatkami, oběžné kolo je vyrobeno z kompozitního materiálu. Oběžné kolo je staticky a dynamicky vyváženo.
Motory
Na oběžném kole ventilátoru je napřímo namontován EC motor. Motor ventilátoru je možné plynule řídit externím signálem 0…10 V nebo PWM. Motor je vybaven vlastní vestavěnou tepelnou ochranou. Krytí elektromotoru IP44.
Ohřívače
Vodní ohřívače jsou navrženy pro teplotní spád topné vody dT = 20 K (80/60 °C) pro vstupní teplotu vzduchu te = –12 °C/90 % r.v. při nominálním průtoku vzduchu. Elektrické ohřívače jsou navrženy pro vstupní teplotu vzduchu te = –12 °C/90% r.v. při nominálním průtoku vzduchu a jsou vybaveny provozním a havarijním termostatem.
Filtry
V jednotce je umístěn jeden nebo více filtračních článků třídy filtrace F7 (na přání filtr třídy G4 až F9), které jsou situovány do jedné filtrační stěny. Filtr je vyroben z polypropylenového filtračního materiálu. Přístup k filtrům je přes revizní dveře na obslužné straně jednotky. Jednotku je možné doplnit v případě vícestupňové filtrace filtračními kazetami MFL s filtračními vložkami MFR, které jsou určeny pro montáž do potrubí.
Elektrické připojení
Napájecí napětí jednotek je 1 × 230 V / 50 Hz nebo 3 × 400 V / 50 Hz a je závislé na vybavení jednotky. Přívodní kabely, kabely k čidlům, silové kabely k ventilátorům se do jednotky přivádějí přes plastové průchodky ve stěně jednotky, které nejsou součástí dodávky jednotky. Svorkovnice elektrického ohřívače u jednotek RME je přístupná po sejmutí vnějšího krytu. Elektromotor ventilátoru má přívodní napájecí kabel vyveden do plastové rozvodnice se svorkovnicí, která je umístěna uvnitř jednotky.
Regulace
Jednotka je standardně dodávána bez regulace. V případě požadavku je jednotka vybavena regulací Digireg®. V případě, že je jednotka vybavena systémem MaR přímo z výrobního závodu, jsou elektricky připojena a odzkoušena všechna čidla a pohony. Ovládací skříň je umístěna na stěně jednotky dle aktuálních prostorových požadavků konkrétního projektu (umístění ovládací skříně systému MaR je nutné specifikovat v objednávce).
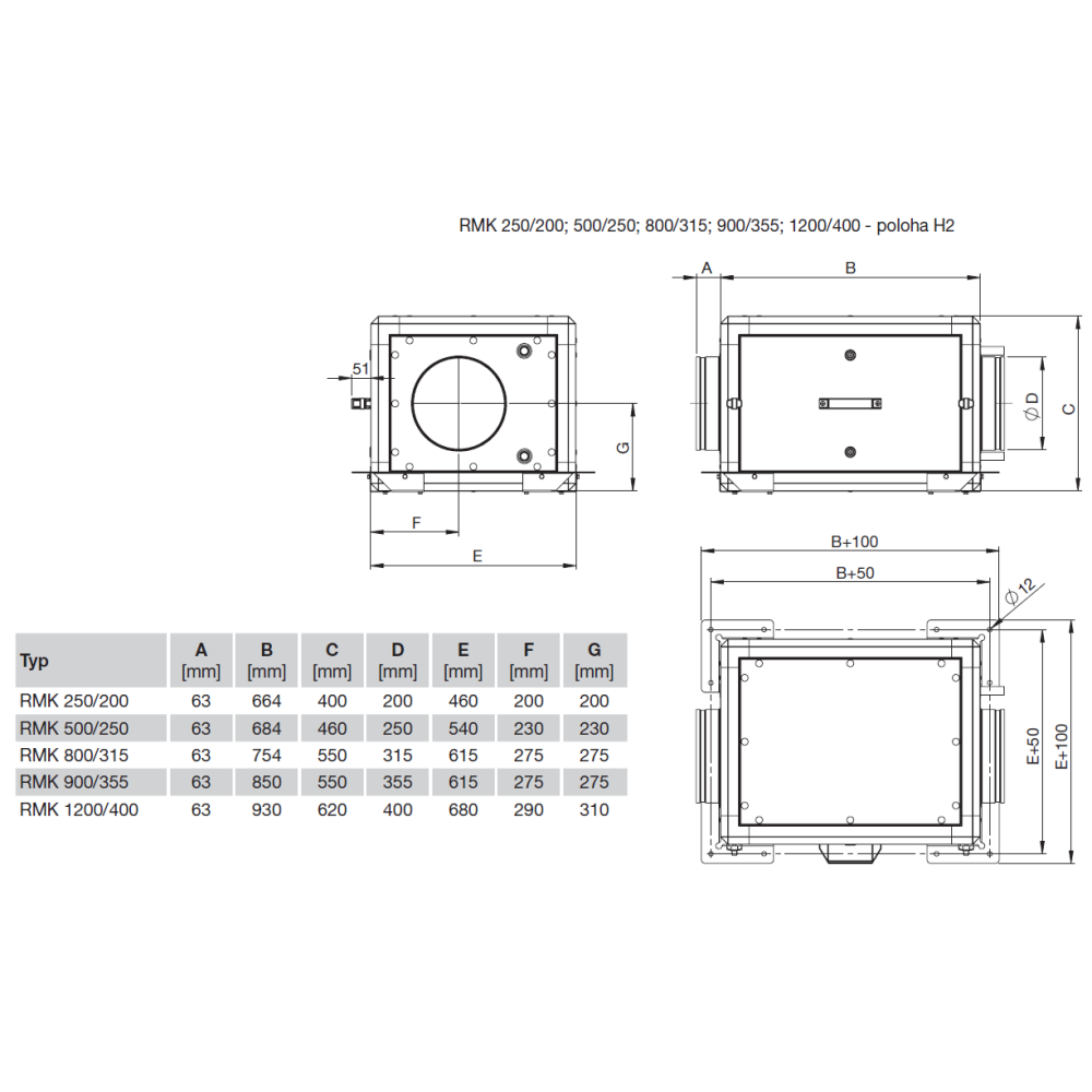
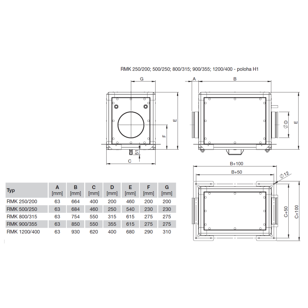
Montáž
je možná v horizontální poloze s obslužnou stranou z boční strany jednotky (označení v kódu jednotky H2) nebo ze spodní strany jednotky (označení v kódu jednotky H1). Dále je možné rozlišit pravé (P) a levé provedení (L) dle pozice vývodů vodního ohřívače nebo pozice připojovací svorkovnice elektrického ohřívače (pro vel. 2400, 3000, 4000, 6000). Pozice L nebo P se určuje při pohledu na čelní vstupní plochu ohřívače ve směru proudění vzduchu. Vedle jednotky je třeba mít manipulační prostor pro sejmutí víka a vyjmutí filtrů a pro provádění periodických revizí elektroinstalace.
Hluk
uvedený v tabulkách představuje hladiny akustického výkonu na sání a výtlaku jednotky s korekcí váhového filtru A.
Varianty
• RME se zabudovaným elektrickým ohřevem a filtrem
• RMW se zabudovaným vodním ohřevem a filtrem
• RMK s filtrem bez ohřívače (na dotaz)
Informace
Jednotka je určena pro větrání komerčních prostor. Dodávku jendotky do venkovního prostředí je potřeba konzultovat.
Podmínky záruky
Zařízení RME, RMW, RMK Ekonovent® včetně řídicího systému DVAV, DCAV a DCOP musí být uvedeno do provozu výhradně Prodávajícím anebo osobou k tomu Prodávajícím určenou. Nedodržení této podmínky má za následek zánik práv Kupujícího z vadného plnění a ze Záruky za jakost. Bližší podmínky stanovuje Reklamační řád Prodávajícího.
Parametry
| Základní údaje | |
|---|---|
| Hmotnost | 60,00 kg |
| Maximální teplota vzdušniny | 40 °C |
| Připojení | |
| Průměr připojovacího potrubí | 400 mm |
| Elektrické parametry | |
| Napájení | 230 V |
| Krytí | IP44 |
| Typ motoru | EC |
| Maximální proud EC motorů jednotky | 1,4 A |
| Maximální výkon EC motrů jednotky | 222,0 W |
| Vybavení | |
| Řídící systém Digireg | Ano |
| Filtrace | Ano |
| Další | |
| Maximální otáčky | 2 045 min⁻¹ |
Dodržením pokynů v návodu by nemělo vzniknout žádné riziko týkající se bezpečnosti, zdraví a životního prostředí v souladu se směrnicemi ES (s označením CE). Totéž platí pro ostatní výrobky použité v zařízení nebo při instalaci. Následující všeobecné informace považujte za důležité:
• dodržujte bezpečnostní pokyny, aby nedošlo ke škodám na zařízení či ke zranění osob
• technické informace uvedené v tomto návodu nesmějí být měněny
• je zakázáno zasahovat do motoru zařízení
• aby zařízení vyhovovalo směrnicím ES, musí být zařízení připojeno k elektrické síti v souladu s platnými předpisy
• zařízení musí být nainstalováno takovým způsobem, aby za běžných provozních podmínek nemohlo dojít ke kontaktu s jakoukoliv pohyblivou částí a/nebo částí pod napětím
• zařízení vyhovuje platným předpisům pro provoz elektrických zařízení
• před jakýmkoliv zásahem do zařízení je nutné jej vždy odpojit od napájení
• při manipulaci či údržbě zařízení je nutné používat vhodné nástroje
• zařízení musí být používáno pouze pro účely, pro které je určeno
• tento spotřebič nesmí používat děti mladší 8 let a osoby se sníženými fyzickými, smyslovými či mentálními schopnostmi nebo osoby s nedostatkem zkušeností a znalostí, pokud nejsou pod dozorem zodpovědné osoby nebo pokud nebyly dostatečně poučeny o bezpečném používání zařízení a u nichž nemůže dojít k pochopení rizik s tím spojených
• uživatel musí zajistit, aby si se zařízením nehrály děti
• čištění a údržbu zařízení nesmí provádět děti bez dozoru


Sdílet na Facebooku
Sdílet na Twitter
Odeslat e-mail












