Kompaktní vzduchotechnické jednotky s protiproudým deskovým rekuperačním výměníkem s vysokou účinností ZZT s možností integrovaného chlazení či ohřevu, směšování a obtoku rekuperátoru.
Více informací
Cena na dotaz
dostupnost: na dotaz [3.4.2026, 00:00] Aktualizovat
Zboží nelze objednat přes internet.
Kontaktujte specialisty z obchodního oddělení
nebo navštivte naše pobočky.

Kód produktu:
Výrobce: ELEKTRODESIGN ventilátory spol. s r. o.   Více informacíMéně informací

ELEKTRODESIGN ventilátory spol. s r. o.
Boleslavova 53/15
140 00 Praha 4 – Česká Republika
elektrodesign[zav]elektrodesign[teč]cz
www.elektrodesign.cz

Popis produktu
Popis produktu
Skříň

Patentovaný modulární systém ISOSTREAM® se stěnovými panely tloušťky 45 mm, které jsou vyrobeny z ocelového pozinkovaného plechu s vnějším lakováním v odstínu RAL 9002 (šedobílá). Panely jsou uvnitř vyplněné zvukovou a tepelnou izolací z nehořlavé skelné minerální vlny. Pro usnadnění servisu je skříň jednotky vybavena otevíratelnými dveřmi se zámky nebo plně snímatelnými panely. Rám jednotky je vyroben z hliníkových profilů, stěnové panely jsou do rámu přišroubovány. Vývody kondenzátu od rekuperačního výměníku a chladiče jsou umístěny vždy ve spodním panelu jednotky a jsou připravené pro napojení protizápachového sifonu. Na přání zákazníka je možné plášť jednotky opatřit atypickou povrchovou ochranou s vyšší korozní odolností.

Ventilátory

Na přívodní a odvodní straně jednotky je montován ventilátor s dozadu zahnutými lopatkami. Oběžné kolo je vyrobeno z kompozitního materiálu a je staticky a dynamicky vyváženo.

Motory

Na oběžném kole ventilátoru je napřímo namontován EC motor. Motor ventilátoru je možné plynule řídit externím signálem 0…10 V. Motor je vybaven vlastní vestavěnou tepelnou ochranou. Třída účinnosti motoru IE4, krytí elektromotoru IP54.

Rekuperátor

Rekuperační protiproudý výměník se zcela oddělenými proudy přívodního a odvodního vzduchu je vyroben z hliníku. Součástí rekuperátoru je bypass s klapkou, která plně řídí vstup vzduchu do výměníku nebo do bypassu. Na přání je možné rekuperátor dovybavit cirkulační nebo směšovací klapkou (označení C nebo MX).

Filtry

Na sání čerstvého vzduchu a sání odtahového vzduchu je možné umístit 2 kompaktní filtrační články různých tříd filtrace tloušťky 48 mm nebo 1 filtrační článek tloušťky 96 mm (pro jednotky velikostí DV 1800 až 7800). Pro velikosti DV 500, 800, 1200 je možné montovat pouze jeden filtrační článek tloušťky 48 mm. Dostupné jsou filtry v třídách filtrace od G4 do F9. Přístup k filtrům je přes revizní dveře na obslužné straně jednotky. Jednotku je možné doplnit v případě vícestupňové filtrace filtračními kazetami MFL (resp. IFL) s filtračními vložkami MFR (resp. IFR), které jsou určeny pro montáž do potrubí.

Klapky

Hliníkové regulační klapky s přípravou pro osazení servopohonu jsou integrovány na sání čerstvého a odtahovaného vzduchu. Klapky splňují třídu těsnosti 2 dle EN1751. Na přání je možné jednotku dovybavit klapkami v třídě těsnosti 3.

Ohřívače a chladiče vzduchu

Jednotka je v závislosti na provedení vybavena vodním nebo elektrickým ohřívačem vzduchu. Pro potřeby letního chlazení vzduchu je montován vodní chladič nebo přímý výparník. Pro potřeby bivalentního ohřevu je možné výparník vyrobit v reverzibilním provedení. Výparníky jsou standardně navrženy pro chladivo R410A a R32. Vodní ohřívače a chladiče mají standardně měděné trubky a hliníkové lamely v pozinkovaném ocelovém rámu. Pro potřeby vyšší korozní ochrany je možné výměníky opatřit dodatečnou antikorozní ochranou. Elektrické ohřívače mají standardně hladké topné tyče a jsou vybaveny provozním termostatem se spouštěcí teplotou 60 °C a havarijním termostatem s ručním resetem a spouštěcí teplotou 120 °C.

Elektrické připojení

Napájecí napětí 1×230 V/50 Hz nebo 3×400 V/50 Hz je závislé na vybavení jednotky. Přívodní kabely, kabely k čidlům a silové kabely se do jednotky přivádějí přes plastové průchodky ve stěně jednotky. Uvnitř jednotky jsou pro vedení kabelů připraveny gumové průchodky s membránou.

Regulace

Jednotka je standardně vybavena digitální regulací Digireg® dle konfigurace jednotky. V případě, že je jednotka vybavena systémem MaR přímo z výrobního závodu, jsou elektricky připojena a odzkoušena všechna čidla a pohony. Ovládací skříň je umístěna na stěně jednotky (v případě atypického umístění ovládací skříně systému MaR je nutné toto konzultovat s výrobcem).

Montáž

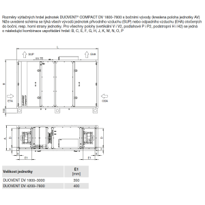
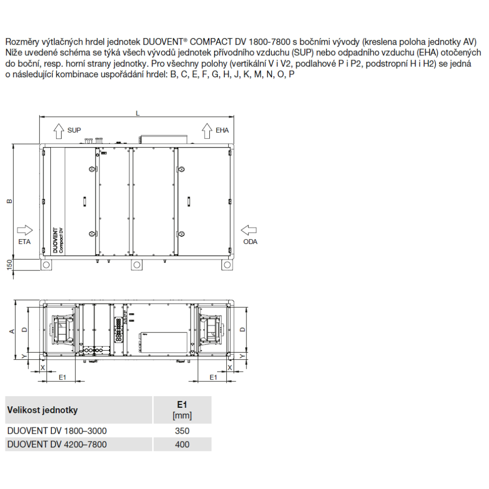
Ve vertikální (označení poloh „xV“) nebo horizontální (označení poloh „xH“) poloze pod strop nebo na podlahu (označení poloh „xP“). Konkrétní rozmístění hrdel vzhledem k obslužné straně je nutné specifikovat. Před jednotkou je nutné zachovat předepsaný servisní prostor pro potřeby servisních zásahů, výměny filtrů apod. Pod jednotkou musí být prostor pro instalaci sifonu pro odvod kondenzátu. Jednotku je nutné montovat se spádem 5% směrem k odvodnímu hrdlu kondenzátu na straně chladiče vzduchu. Potrubí VZT se připojuje na připravená kruhová (DUOVENT® DV 500 až 1200) nebo v sendvičovém panelu integrovaná obdélníková hrdla (DUOVENT® DV 1800 až 7800). Doporučujeme mezi hrdla potrubí a jednotku montovat pružné manžety pro eliminaci přenosu vibrací z jednotky do potrubí. Obdélníková hrdla jsou integrována ve stěnovém sendvičovém panelu jednotky a rozteč rohových připojovacích otvorů je optimalizována pro připojovací příruby P20. Pro podstropní montáž na závitové tyče M10 je jednotka vybavena 4 ks podstropních závěsů (pro velikosti DUOVENT® DV 500 až 1200) nebo 8 ks podstropních závěsů (pro velikosti DUOVENT® DV 1800 až 7800).

Hluk

Hlukové údaje uvedené v tabulkách představují hladiny akustického výkonu na jednotlivých hrdlech jednotky s korekcí váhového filtru A, hladinu akustického výkonu pláště celé jednotky. Akustické parametry jsou v toleranci ±3 dB.

Podmínky záruky

Zařízení DUOVENT® COMPACT DV včetně řídicího systému DVAV, DCAV a DCOP musí být uvedeno do provozu výhradně Prodávajícím anebo osobou k tomu Prodávajícím určenou. Nedodržení této podmínky má za následek zánik práv Kupujícího z vadného plnění a ze Záruky za jakost. Bližší podmínky stanovuje Reklamační řád Prodávajícího.

Příslušenství VZT

• Sonoflex®, Termoflex® pružné hadice a tvarovky
• SPIRO kruhové spiro potrubí a tvarovky
• KAA, IAE pružné spojky
• MAA, IAA tlumiče hluku
• RSK, TSK zpětné klapky 
• MSK, IJK škrticí a směšovací klapky 
• talířové ventily, anemostaty, dýzy, mřížky
• protidešťové žaluzie
• MBE, IBE, IBW, IKW elektrické a vodní ohřívače do kruhového a hranatého potrubí
• MKW, IKW, IKF, MKF vodní chladiče a přímé výparníky do kruhového a hranatého potrubí
• MFL, IFL, MFLT filtrační kazety do kruhového a hranatého potrubí
• ESU směšovací uzly 
• SF-P sifon podtlakový

Příslušenství EL

• Digireg® digitální regulační systém pro jednotky s ohřevem i chlazením, ovladač s dotykovým displejem
• JTR triakový spínač pro řízení výkonu elektrického ohřívače
• HIG, HYG hygrostaty
• EDF-CO2, SQA čidla CO2
• RTR termostaty 
• DTS PSA tlakové snímače
• servopohony 
• AIRSENS čidla kvality vzduchu

Celý popis
Parametry
Základní údaje
Výměník Deskový rekuperační
Montáž Podstropní
Umístění hrdel Horizontální
Maximální průtok vzduchu 3 500 m³/h
Hmotnost 320,00 kg - 387,00 kg
Délka 2 562 mm
Výška 678 mm
Šířka 1 620 mm
Výška podstavných nožiček 150 mm
Připojení
Průměr připojovacích hrdel 0 mm
Rozměry připojovacích hrdel 450 mm - 600 mm
Elektrické parametry
Napájení 400 V
Bezpečnostní pokyny

Dodržením pokynů v návodu by nemělo vzniknout žádné riziko týkající se bezpečnosti, zdraví a životního prostředí v souladu se směrnicemi ES (s označením CE). Totéž platí pro ostatní výrobky použité v zařízení nebo při instalaci. Následující všeobecné informace považujte za důležité:

• dodržujte bezpečnostní pokyny, aby nedošlo ke škodám na zařízení či ke zranění osob
• technické informace uvedené v tomto návodu nesmějí být měněny
• je zakázáno zasahovat do motoru zařízení
• aby zařízení vyhovovalo směrnicím ES, musí být zařízení připojeno k elektrické síti v souladu s platnými předpisy
• zařízení musí být nainstalováno takovým způsobem, aby za běžných provozních podmínek nemohlo dojít ke kontaktu s jakoukoliv pohyblivou částí a/nebo částí pod napětím
• zařízení vyhovuje platným předpisům pro provoz elektrických zařízení
• před jakýmkoliv zásahem do zařízení je nutné jej vždy odpojit od napájení
• při manipulaci či údržbě zařízení je nutné používat vhodné nástroje
• zařízení musí být používáno pouze pro účely, pro které je určeno
• tento spotřebič nesmí používat děti mladší 8 let a osoby se sníženými fyzickými, smyslovými či mentálními schopnostmi nebo osoby s nedostatkem zkušeností a znalostí, pokud nejsou pod dozorem zodpovědné osoby nebo pokud nebyly dostatečně poučeny o bezpečném používání zařízení a u nichž nemůže dojít k pochopení rizik s tím spojených
• uživatel musí zajistit, aby si se zařízením nehrály děti
• čištění a údržbu zařízení nesmí provádět děti bez dozoru

Ke stažení
Technické listy, návody a prohlášení
Katalogový list .pdf (4.85 MB)
Návod .pdf (3.70 MB)
Ekodesign .pdf (45.34 kB)
Kontaktujte nás